Neubau einer Doppelhaushälfte mit Garage und Carport in Eschenbach

Neubau einer Doppelhaushälfte mit Garage und Carport in Eschenbach

Projektdetails

Neubau einer Doppelhaushälfte mit Garage und Carport in Eschenbach

 

Bauort:

Am Stadtweiher
92676 Eschenbach

Bauherren:

– Cornelia R.
– Andreas G.
jeweils aus 95506 Kastl

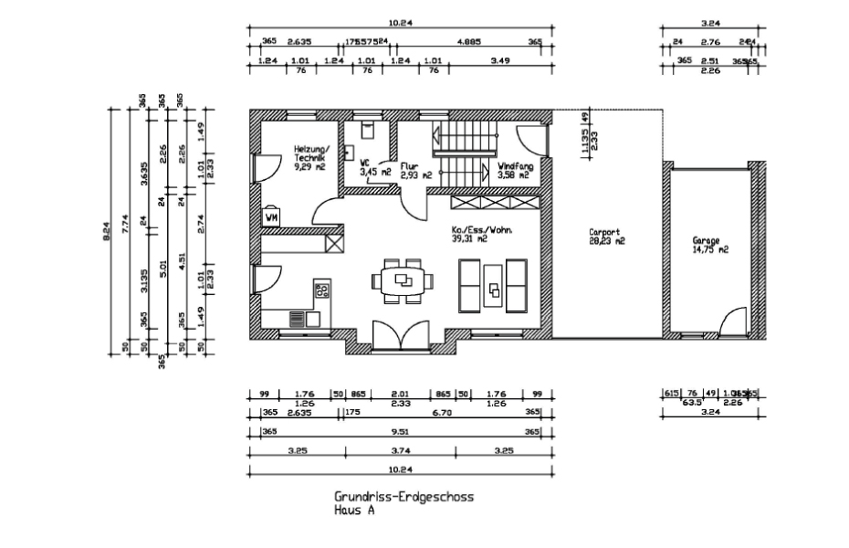
Zum Haus:

Die jeweils etwa 10 x 8 m großen, zweigeschoßigen Doppelhaushälften sind nicht unterkellert. Die Wände sind aus Hochlochziegel und die Decken aus Stahlbeton. Das Dach wurde mit anthrazitfarbenen Tonziegeln gedeckt bei einer Dachneigung von 22 Grad.

Zu jedem Doppelhaus gehört jeweils ein Carport und eine Garage.

 

* HINWEIS: Bei den auf dieser Seite dargestellten Referenzen handelt es sich um durch die aki GmbH bearbeitete Projekte, sowie durch die Mitarbeiter der aki GmbH bearbeitete Projekte (persöhnliche Referenzen). Wir Informieren Sie gerne über unsere (Teil-)Leistungen bei den einzelnen Projekten. Wir weisen darauf hin, dass nicht bei allen genannten Projekten alle durch die aki GmbH angebotenen Leistungen erbracht wurden.